
全國咨詢熱線
13564983489

企業名稱:上海琛派石化設備有限公司
手機:13564983489
電話:021-56553820
傳真:021-56553820
地址:上海市金山區楓涇鎮環東一路65弄7號1323室
網址 : www.xahhbz.com
氣固噴射器  | 
          ||||||||||||||||||||||||||
| 概 
              述
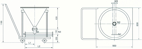
                 氣固噴射器主要由漏斗和噴射器兩部分構成。漏斗用來裝填和補充顆粒材料,如活性碳、離子交換器用的樹脂和其它固體材料。 氣固噴射器它借助有壓力的空氣輸送可流動顆粒材料,使其通過一個漏斗進入噴射器。 空氣以很高的速度從動力噴嘴中噴出,進入噴射器的混合區,這時噴射的空氣帶動傳送物,通過一個管道或軟管導入使用現場。 
 
 
 
 注:1、空氣壓力為0.3-0.8Mpa; 2、漏斗容量:100L(用戶可自選)   3、接口法蘭標準:HG20592-97 RF  PNl.0  | 
          ||||||||||||||||||||||||||